Conservazione palazzo Busini-Bardi - Appartamenti 2003-2007 a cura di Alessandra Meyer
| pag 1 | pag 2 | pag 3 | Il cortile | planimetria | fronte principale | Foto cortile|
Cerca in Limen
 
Carte del restauro
Nuovo Codice BB.CC.
Legislazione
Visibilità
Quartiere S. Croce
Scheda Storica
Camerata dei BARDI
Rubriche
Interrog. Parlam.
F. storiche - Regesto
I Busini

Mission

 

 

Il caso

Il palazzo dei primi del '400 è oggetto di una radicale ristrutturazione finalizzata a ricavare ventuno appartamenti privati attorno al cortile rinascimentale

"Un ennesimo scempio fiorentino il risultato del restauro del palazzo di attribuzione brunelleschiana che affaccia su via de' Benci, commissionato dai Busini ai primi del '400. Il palazzo di proprietà della Bardi Srl è oggetto di una radicale ristrutturazione finalizzata a ricavare ben ventuno appartamenti privati attorno allo splendido Cortile rinascimentale. All'edificio storico, di valore riconosciuto da generazioni di studiosi, viene riservata la sorte di una palazzina residenziale con una prassi di riuso dettata prevalentemente, se non esclusivamente, dalle intenzioni del privato.... Il restauro dell'edificio protorinascimentale è stato affidato sin dal 2002 all'Arch. Rossano Morandini sotto la "supervisione" della Soprintendenza ai beni architettonici di Firenze. Stiamo riscontrando anche delle verosimili negligenze nel cantiere in corso a partire dalle inefficaci precauzioni prese per proteggere i rivestimenti lapidei del cortile interno a partire dai capitelli delle colonne che non risultano adeguatamente riparati.

Un costume diffuso

"Non ci stupisce che i lavori possano consentire il frazionamento in appartamenti di un edificio di attribuzione brunelleschiana tantomeno che la prassi del riuso dell’edificio sia dettata prevalentemente, se non esclusivamente, dalle intenzioni del privato piuttosto che da una necessaria supervisione della Soprintendenza e delle Carte del restauro italiane. Di questa consuetudine abbiamo da tempo un discreto repertorio di lettura ed un corposo archivio tutto italiano che progressivamente metteremo a disposizione in rete insieme ai nostri collaboratori. Per quanto ci riguarda ci siamo già mossi da qualche tempo ed abbiamo ricevuto molte segnalazioni a partire da professionisti a contatto con il cantiere. Faremo delle accurate indagini sul tema come avevamo preventivato organizzando possibilmente un dossier che per primo recapiteremo all’assessore alla cultura del comune di Firenze Simone Siliani che che non ha esercitato una necessaria supervisione rispetto a importanti trasformazioni di edifici storici della città."

Cultura del restauro

Questa è la cultura creatasi attorno alla deregulation della Patrimonio Spa. Tuttavia la cosa che ancora non è del tutto chiara in questa singolare parafrasi delle forme del Restauro, capillare e diffuso in molti centri storici italiani, è come sia possibile che tutto il patrimonio di conoscenza dell’Università italiana, con importanti professionisti del restauro, di storia e di progettazione, finisca per rimanere inerte se non addirittura indifferente di fronte ad un cosi massiccio e generalizzato “assalto al patrimonio” che gli anni della Patrimonio Spa e del Nuovo Codice sui bb.cc hanno rilanciato in forme cosi evidenti e monumentali ?"

Appartamenti Palazzo del '400
Busini-Bardi

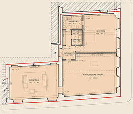
Fig. 13- Palazzo Busini-Bardi, appartamento 1 Piano Nobile angolo via de' Vagellai. In questo spazio del primo piano "Nobile" sono conservate tracce iconografiche e ornamentali della sala dove si riuniva la Camerata dei Bardi. Le finestre su via de' Benci sono ad "arco mozzo".

Fig. 14- Palazzo Busini-Bardi, appartamento 1 Piano Nobile angolo via de' Malenchini. I vani sono stati alterati da tramezzature conservate nel nuovo progetto per civili abitazioni. L'angolo sud presenta una soluzione senza finestre sul primo tratto di via de'Malechini. Gli adattamenti degli interni destinati a locali del Liceo scientifico sono acora visibili in pianta.

Fig. 15- Palazzo Busini-Bardi, appartamento 1 piano nobile che affaccia interamente sulla stretta via de' Vagellai. Questa apertura è adiacente al vecchio vano scala che risale alle modifiche del sec. XX con gli adattamenti del piano nobile ad uso scolastico.

Fig. 16- Palazzo Busini-Bardi, Appartamento 2 piano nobile angolo via de' Vagellai. Il salone è sopra la sala dove si riuniva la Camerata dei Bardi. Assai trasformati per le funzioni della sede del Liceo Scientifico, i locali hanno perso gran parte del loro carattere storico anche in questa nuova destinazione d'uso.

Fig. 17- Palazzo Busini-Bardi, Appartamento 2 piano nobile angolo via Malenchini. Pianta dell'appartamento ricavato nel salone ad angolo con volte a padiglione affrescate. Attualmente gli interni di questa sala sono destinati a studio di un appartamento privato.

Archivio

La complessa vicenda storica del palazzo: l'edificio rimane un importante elemento di transizione per la nascita del palazzo rinascimentale fiorentino

"La storiografia concorda nell' affermare che l'ideazione del primo palazzo di chiara impronta rinascimentale a Firenze prese forma dopo l'episodio di palazzo Busini ( 1420-27 ca.) e il modello proposto a Cosimo il Vecchio da Filippo Brunelleschi (intorno al 1440) per il nuovo palazzo in via Larga. Agli inizi del '400 il panorama degli edifici privati era ancora rappresentato da palazzi di matrice tardogotica; da Uzzano, di Alberto di Zanobi, Lensi, palazzi medievali ma che rivelano comunque un'inclinazione a elementi nuovi come le dimensioni della facciata sul fronte urbano in particolare la proporzione orizzontale dell'edificio in via dei Bardi, la presenza di cortili interni con nuovi rapporti come nel caso di palazzo Lenzi in Piazza Ognissanti e lo stesso da Uzzano..Testi architettonici non chiariti esaurientemente della critica e che lasciano ancora aperte molte valutazioni, a partire dall'attribuzione del palazzo in piazza Ognissanti - in passato si faceva il nome dello stesso Filippo - e la sua stessa derivazione che qualcuno azzarda provenire da Palazzo Busini."

I Busini

"La famiglia Busini di chiara fama nelle Firenze repubblicana aveva dato due suoi discendenti al Gonfalonierato di Giustizia e aveva ricoperto per ben 28 volte una carica all'interno del Priorato. Di grandi ricchezze e proprietà immobiliari, i Busini disegnavano attraverso le loro cariche nello scorcio del sec. XV una delle influenti famiglie mercantili al pari dei Da Uzzano e degli stessi Bardi, e partecipavano alla rappresentazione del proprio arme con tutte le forme della cultura rinascimentale e mercantile. Sappiamo che la costruzione del palazzo in realtà non fu terminata completamente e presentava comunque delle arcate al piano terreno con funzione di bottega andate successivamente perdute con i lavori dei Bardi. come ancora se ne vedono nella via de' Benci. I successivi lavori di ristrutturazione ad opera dei Bardi che ne entrarono in possesso nel 1483 riguardarono parte delle fondamenta e delle opere di completamento, tra cui probabilmente anche il bugnato a graffito.

La legge Bottai

"Questo caso paradigmatico riflette fotograficamente il clima creatosi attorno alla deregulation della patrimonio spa nonostante l'esistenza di importanti criteri sulla conservazione degli edifici della storica Legge Bottai - n.1089 del 1939 - fondamento della cultura della conservazione italiana nel mondo. Principi di Salvaguardia che impediscono l'attuale destinazione d'uso del palazzo che ospiterà appartamenti privati: l'art. 11, capo II della 1089 del 1\6\39 che prevede testualmente " ..le cose medesime non possono essere adibite ad usi non compatibili con il carattere storico od artistico, oppure tali da recare pregiudizio alla loro conservazione, " ed ancora " il Ministro ha facoltà di provvedere direttamente alle opere necessarie per assicurare la conservazione ed impedire il deterioramento delle cose indicate negli articoli " ed anche " ..ha facoltà di imporre, per le cose di cui all'art.14, le provvidenze necessarie per assicurare la conservazione ed impedire il deterioramento"...

- l i m e n i t a l i a - 2 0 1 6 - l i m e n - D I E S M N - p u
't u s c a n y - a r c h i t e c t u r a l - h i s t o r y - b u i l d i n g s '
         
5
3
2 1 4

 

© 1999-2003 Limen E.T.S. - Via F. Marucelli 9 - Firenze, (FI) - Tutti i diritti riservati ost
Contattaci - Disclaimer - Pubblicità